




從用戶出發,準確的設計定位,清晰的設計思路,高效的設計
溝通,優良的設計品質都是我們追求的設計效果。對于
我們而言,與客戶保持良好的溝通是必要的手段與方式,這樣
我們也將時刻了解客戶的產品品牌理念,同時也會不斷完善我
們的產品設計方案。
產品落地至關重要的環節,優秀的結構設計需要對產品材料、
工藝、成型、裝配等有深入了解,并且需要充分考慮如何降低
成本、降低開發風險、使產品易于使用、方便維護。
無論多么絢麗的效果圖,如果生產加工環節出問題,前期的一切工作都會付之東流。
千策良品擁有一流的供應商資源,無論是工廠經驗,還是工廠設備,都能夠為設計圖
紙產品化提供可靠保障。
需要通過對空調系統進行節能及優化改造,以降低機房空調能耗,提高系統運行安全性及穩定性。
有固定數十人的維修安裝技術團隊,隨時待命為您提供產品的現場安裝、技術指導安裝和售后維修服務。
對各地的服務網點的工作進行監督和管理;接受客戶的投訴并進行跟蹤處理,直至令客戶滿意為止。
自主品牌-鵬鯤



做中央空調行業的“蘇寧易購”,讓您暢享一站式采購的便捷與優惠。
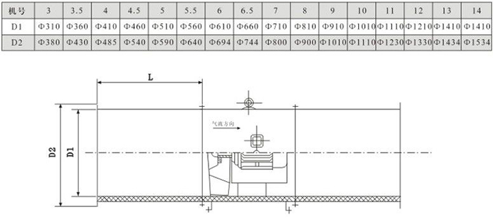
GXF系列斜流式通風機是一種新型低噪高效節能型斜流式通風機,斜流式通風機流量大于離心式風機,全壓高于軸流式風機,體積小于離心式風機,該風機通過了模擬機的實驗研究,采用新的葉型與葉片,從而得到了更大的流量和壓力, 提高了風機的效率。 GXF系列斜流通風機按葉輪直徑分為300-1400mm十六種規格,按類型分A、B、C、D、E、F、S七種類型,共五十八個機號。風量由1500mm-90000m3/h,全壓由185-2500Pa;這樣就給設計部門和也難怪乎單位提供了充分的選擇條件,具體數據參照風機性能參數表。 風機材料有鋼制,玻璃鋼制作,亦可防爆制作。(采用防爆措施,配用鋁合金材料) GXF系列斜流式通風機性能參數表 GXF-A型斜流式通風機性能參數表 四、GXF系列斜流式通風機外形及安裝尺寸(mm) GXF系列斜流式通風機外形及安裝尺寸(A、B、C、D、E、F型) GXF系列斜流式通風機是一種新型低噪高效節能型斜流式通風機,斜流式通風機流量大于離心式風機,全壓高于軸流式風機,體積小于離心式風機,該風機通過了模擬機的實驗研究,采用新的葉型與葉片,從而得到了更大的流量和壓力, 提高了風機的效率。 GXF系列斜流通風機按葉輪直徑分為300-1400mm十六種規格,按類型分A、B、C、D、E、F、S七種類型,共五十八個機號。風量由1500mm-90000m3/h,全壓由185-2500Pa;這樣就給設計部門和也難怪乎單位提供了充分的選擇條件,具體數據參照風機性能參數表。 風機材料有鋼制,玻璃鋼制作,亦可防爆制作。(采用防爆措施,配用鋁合金材料) GXF系列斜流式通風機性能參數表 GXF-A型斜流式通 GXF-B型斜流式通風機性能參數表 GXF-C型斜流式通風機性能參數表 GXF-D型斜流式通風機性能參數表 GXF-E型斜流式通風機性能參數表 GXF-F型斜流式通風機性能參數表 GXF-S型雙速斜流式通風機性能參數表(1) GXF-S型雙速斜流式通風機性能參數表(2) GXF系列斜流式通風機外形及安裝尺寸(mm) GXF系列斜流式通風機外形及安裝尺寸(A、B、C、D、E、F型) GXF-S系列雙速斜流式通風機外形及安裝尺寸 GXF-BX消聲型斜流風機 GXF-BX1消聲型斜流風機安裝尺寸(mm) GXF-BX2消聲型斜流風機安裝尺寸(mm)













特點:耐高溫性能優、效率高、安裝方便、運行可靠(可生產單速、雙速、變頻無級調速、屋頂式消防排煙風機及防爆消防型特種風機)并獲得消防產品許可證。

4-72離心風機是一種高效節能的離心式風機,其機翼型葉片、曲線型葉輪前盤和錐弧型進口集流器等結構,使風機具有效率高、噪聲低、體積小、可靠性強、在特殊情況下風量大小可配用調節閥門進行控制。(可生產防爆式B4-72型防爆離心通風機、防腐式F4-72型防腐離心通風機)

本公司生產的HTFC系列低噪聲柜式(兩用)離心風機即HTFC柜式離心排煙風機箱通過國家3C認證 特點:一機兩用(通風及排煙),具有風量大,轉速低、運行平穩、噪聲低、結構緊湊、安裝方便。 用途:賓館、飯店、禮堂、影劇院、地下室、廠礦企業的車間、辦公樓與需要通風換氣的場合使用。

1.1.BF 型風機箱葉輪采用前傾式多翼葉輪和低噪聲外轉子電機,電機與葉輪為直聯,風機噪聲比皮帶傳動式風機箱低。風機安裝形式分臥式(W)和立式(L)兩種。

PYHL-14A系列高溫排煙低噪聲節能混流通風機是介于軸流式和離心式風機之間的一種新型風機,它具有離心式風機的高壓力,軸流風機的大流量,效率高、節能好、噪聲低、安裝方便等特點。本系列通風機設計新型、結構緊湊、體積小、重量輕、易安裝、與老型號的離心式風機相比可節電20%

貫流式電熱空氣幕是在貫流空氣幕的進風口或出風口處加上電加熱器,利用貫流風機運轉帶出的熱氣流形成的熱空氣幕。 電熱空氣幕根據加熱材料不同可分為半導體熱敏陶瓷加熱器和翅片電熱管加熱器兩種;根據外殼材料不同可分為經濟適用型和豪華型兩種;根據結構不同又可分為普通型、加強型兩種。

GXF系列斜流式通風機是一種新型低噪高效節能型斜流式通風機,斜流式通風機流量大于離心式風機,全壓高于軸流式風機,體積小于離心式風機,該風機通過了模擬機的實驗研究,采用新的葉型與葉片,從而得到了更大的流量和壓力, 提高了風機的效率。

Q型暖風機是由通風機、電動機及散熱器組合而成的聯合機組。適用于允許空氣循球的各種類型的車間,當空氣中不含灰塵、易燃、易爆性的氣體時,可作為循球空氣采暖之用。

風機主要有葉輪、機殼、進口集流器、導流片、電動機等部件組成。葉輪采用有子午加速特點的扭曲平板片焊接在輪轂上。經動平衡校驗,超速試驗,具有良好的空氣動力性能。機殼采用圓筒形,與消音功能的集風器聯接成整體。出口裝有導流片,具有良好的氣流分布,壓力穩定。

CDZ型軸流式風機具備T35-11軸流風機特點,同時將葉片設計成寬型前掠式,等柵距結構,可減少氣流在葉片表面上的分離及氣流渦旋的形成,降低風機內氣流的二次損耗,減少了聲源的空氣動力噪聲,氣流穩定。

GDF系列離心式管道風機特點:離心風機采用徑向進出風,具有安裝方便,占地面積小,噪聲低,外形美觀等優點。(電機可外置) 用途:廣泛應用于賓館、禮堂、會議室、辦公樓及地下車庫等場合的送排風系統。

DWT-I型低噪聲玻璃鋼軸流式屋頂風機特點:重量輕、噪聲低、具有風量大、壓力較離心式風機低,同時根據用戶要求還可以設計成雙向旋轉可逆式,具有正反工況等效的特點。

BDW-87-3型玻璃鋼低噪聲屋頂風機是本公司參考國內外同類型風機改用玻璃鋼材質研制成的一種低噪聲風機。噪聲可限制在60(A)分貝以內。本風機具有噪聲低、效率高、耐腐蝕、重量輕、運行可靠、安裝簡單等特點。

特點:適用于風量較小而壓力要求較高的場合。 用途:發電廠、橡膠廠、汽車廠、摩托車廠及防止、冶金等大型工廠的屋頂送排風。 規格: 風機直徑:Φ300~1000mm, 風量:878~31436m3/h,

RM系列離心式熱空氣幕(熱風幕機)工作原理是盤管通入熱媒后,空氣幕出風口噴射出一定厚度的均勻幕狀熱氣流。可阻擋室外冷空氣的侵入,減少室內熱量損失,達到保持室內溫度的目的。